Espace propriétaire
fr
Se connecter
Se connecter

Votre recherche

Sous-compromis
Nouveauté
Orgnac-l'Aven (07150)

4 pièces - 100 m²

Projet de maison d'habiton Orgnac l'aven

290 000 €
Ref : 20770
Découvrir le bien

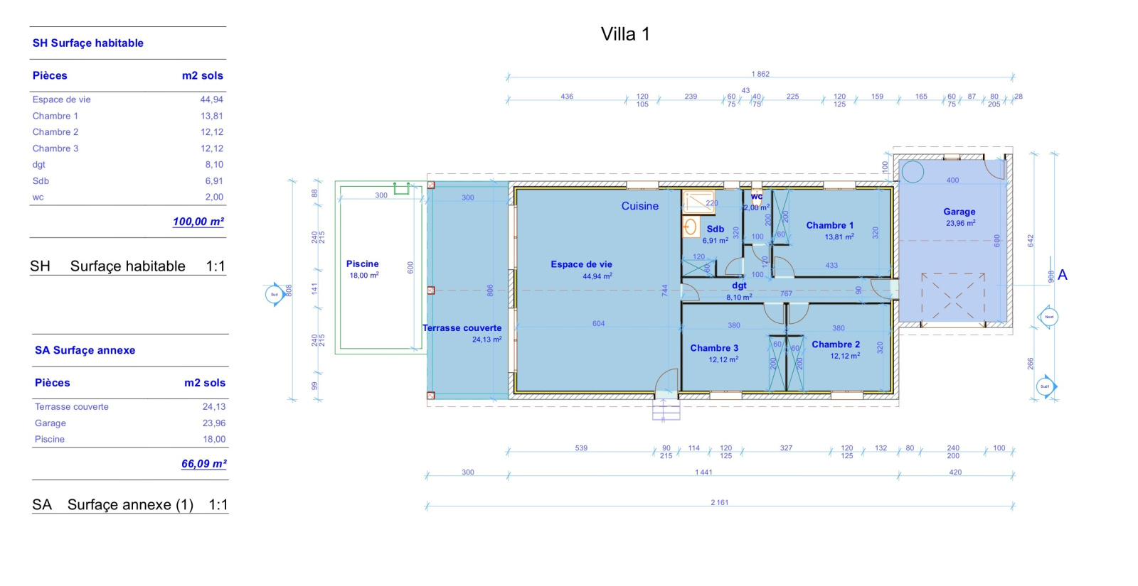
Situé à Orgnac l'aven, cette magnifique parcelle d'environ 850 m2 avec une vue magnifique sur plusieurs chaines de montagnes, vous permettra de construire cette maison d'habitation de 100m2 habitables avec terrasse couverte , garage ainsi qu'une piscine.

La maison sera équipée d'un systéme de chauffage gainable reversible, de double vitrage aluminium, d'une piscine 6*3 au chlore, et différents choix possible sur le carrelage et la peinture.

Ce prix comprends :

Le terrain, le gros oeuvre et second oeuvre de la maison, le garage,la pisicine, la fosse septique, la peinture, la G2 et la tranchée de raccordement réseaux. Le tout en ccmi pour une tranquilité totale.

TRAD_ZEPHYR_Caracteristique TRAD_ZEPHYR_Valeurs
Code postal 07150
Surface habitable (m²) 100 m²
surface terrain 850 m²
Nombre de chambre(s) 3
Nombre de pièces 4
Vue ouest magnifique
TRAD_ZEPHYR_Caracteristique TRAD_ZEPHYR_Valeurs
Nb de salle de bains 1
Mode de chauffage Pompe à chaleur, Autre
Type de chauffage Air pulsé, Autre
Format de chauffage Individuel, Individuel
Interphone NON
Visiophone NON
Terrasse OUI
Nombre de garage 1
Nombre de parking 2
Exposition Ouest
Terrain piscinable OUI
TRAD_ZEPHYR_Caracteristique TRAD_ZEPHYR_Valeurs
Copropriété NON
TRAD_ZEPHYR_Caracteristique TRAD_ZEPHYR_Valeurs
Prix de vente honoraires TTC inclus 290 000 €
DPE GES
  • Commerces et santé
  • Loisirs
  • Ecoles
  • Transports
  • Pratique
Contacter pour ce bien
L'agence
Téléphone 06 11 63 47 73
Adresse
15 Avenue Chaillot 30430 Barjac

* Champ obligatoire

Les informations recueillies sur ce formulaire sont enregistrées dans un fichier informatisé par La Boite Immo agissant comme Sous-traitant du traitement pour la gestion de la clientèle/prospects de l'Agence / du Réseau qui reste Responsable du Traitement de vos Données personnelles.
La base légale du traitement repose sur l’intérêt légitime de l'Agence / du Réseau.
Elles sont conservées jusqu'à demande de suppression et sont destinées à l'Agence / au Réseau.
Conformément à la loi « informatique et libertés », vous pouvez exercer votre droit d'accès aux données vous concernant et les faire rectifier en contactant l'Agence / le Réseau.
Si vous estimez, après avoir contacté l'Agence / le Réseau, que vos droits « Informatique et Libertés » ne sont pas respectés, vous pouvez adresser une réclamation à la CNIL.
Nous vous informons de l’existence de la liste d'opposition au démarchage téléphonique « Bloctel », sur laquelle vous pouvez vous inscrire ici : https://www.bloctel.gouv.fr 
Dans le cadre de la protection des Données personnelles, nous vous invitons à ne pas inscrire de Données sensibles dans le champ de saisie libre
Ce site est protégé par reCAPTCHA, les Politiques de Confidentialité et les Conditions d'Utilisation de Google s'appliquent.

Découvrir nos outils